Feb 2020. Chuku's restaurant completed.
We had an absolutely fantastic time working with Chuku's co-founders Emeka & Ifey Frederick on their first restaurant in Tottenham over the last half year. The project comprises of a cosy 35 cover seating area and a bespoke commercial kitchen. Chuku’s appointed XAMI, to create an aesthetic that pays homage to the Nigerian heritage of the owners, whilst being forward-looking. When approaching the design for the restaurant, the designers first took it upon themselves to explore old and modern examples of Nigerian art and design, being particularly inspired by the bold graphical compositions of the traditional Ukara cloth - a ritual garment native to the Ekpe people of south eastern Nigeria. They also took cues from the London-based Nigerian artist Yinka Iloori whose work is inspired by traditional Nigerian folk stories and textiles also. They melded these various elements to develop bold, colourful geometric forms for the bespoke fitted joinery and the graphic designs for the hanging original artworks that decorate the walls of the restaurant. The colour pallet throughout the interior provides cues to the aesthetic of the old vernacular architecture of Nigeria, which was mainly constructed from adobe, a raw earth material which has vibrant rose tones.
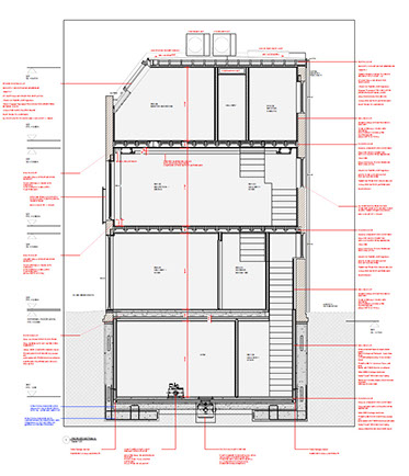
Nov 2019. Works started on Maida Vale Mews
After successfully achieving planning for a new basement with Westminster council, we are happy to announce that works have begun on our project on Elgin Mews South, Maida Vale, London. This is a really exciting project involving the renovation of the entire 3 storey mews house as well as the creation of a new basement level containing a cinema room and gym.
We're proud to be working with Omniform who will be the main contractor on the project. Head on over to their website to see all the amazing large scale residential projects they've completed: omniform.co.uk 2019.
Our campaign 'Save the Stamp: Just Revamp' highlights the financial advantages in increasing the value of your current home compared to moving house. Give us a call to find out how affordable well-designed home improvement can be, compared to the expenses, fees and stamp duty incurred in moving. studio@xami.co.uk 02039 076874
XAMI LTD Registered in England No. 11440712. Copyright © 2020 XAMI LTD